LPDM

Concurso Público das Piscinas de Vila Meã

Piscinas Públicas

Vila Meã - Amarante

Início do projecto: 2004

TALUDE

NAVE

RAMPA

O terreno onde se desenvolve o estudo prévio encontra-se inserido numa área de recente urbanização, na qual se encontra em desenvolvimento o parque desportivo de Vila Meã. Do parque fazem parte as piscinas objecto deste estudo prévio, o estádio de futebol existente e um pavilhão desportivo a executar futuramente.

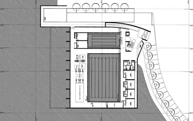
A inserção da proposta na topografia é feita de modo a permitir que o nível do cais das piscinas se situe no actual nível médio do terreno, permitindo não só a reduzida movimentação de terras como a expansão das áreas interiores de piscina para as áreas exteriores de terreno à cota actual da plataforma existente. Esta solução vai permitir a privacidade e controle de acessos de toda esta área exterior de lazer. Os taludes existentes são mantidos e redesenhados, delimitam o interior da parcela e encaminham o utente ao volume onde se efectua a entrada. Desta forma a frente urbana do terreno vai caracterizar-se por um talude ajardinado apenas interrompido para se definir a entrada pública e técnica do edifício.

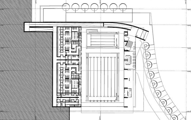
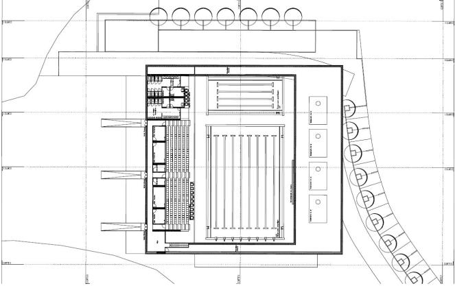
Formalmente e funcionalmente a proposta é definida por três volumes distintos - o embasamento, a nave principal e o corpo de comunicações.

O embasamento é constituído pela área da proposta que se encontra à cota do arruamento, enterrada em relação á cota do patamar do terreno e escondido pelo talude existente, apenas visível na zona da entrada na fachada sul.

A nave principal consiste na cobertura do grande vão onde se situam as piscinas e todas as dependências envolventes. Este volume vai destacar-se do terreno, dando a ilusão da sua suspensão.

No corpo das comunicações desenvolve-se a entrada do edifício . Através dele percorre-se o edifício em rampas perpendiculares ao arruamento de acesso.. Este volume apresenta-se inclinado em relação ao plano horizontal, como referência às rampas do seu interior, e faz uma torção no seu topo sul de modo a valorizar a aproximação ao edifício em relação ao seu principal ponto de chegada – sentido poente nascente. A entrada valoriza-se pelo duplo pé-direito e pela perspectiva do desenvolvimento das rampas e dos patamares em varanda do piso superior.

A visibilidade sobre a envolvente definiu uma espécie de linha diagonal que se observa nos perfis transversais da proposta (sentido sul-norte), que liga visualmente quem está nas bancadas e nas piscinas ao exterior. Esta diagonal vai constituir um ponto de fuga no olhar de quem usufrui deste espaço, em qualquer das suas vertentes de utilização, permitindo a observação da zona de vale situada a sul através da transparência do espaço onde se encontra inserido.

Ficha Técnica:

Arquitectura: Nuno Pereira da Silva, arquitecto

Colaboradores: Diogo Moreira, Marcelo Novais, Frederico Ferreira


© Copyright 2025 LPDM PROJECTOS. Todos os direitos reservados. Welink
Utilizamos cookies para poder oferecer-lhe um melhor serviço no nosso espaço web. Ao continuar a navegar no nosso website autoriza a utilização das cookies. 
Saiba mais.
Aceitar